














Flot og indbydende lejlighed beliggende centralt i Korsør med udsigt over havnen og vandet samt kort afstand til badestrand og bymidte.
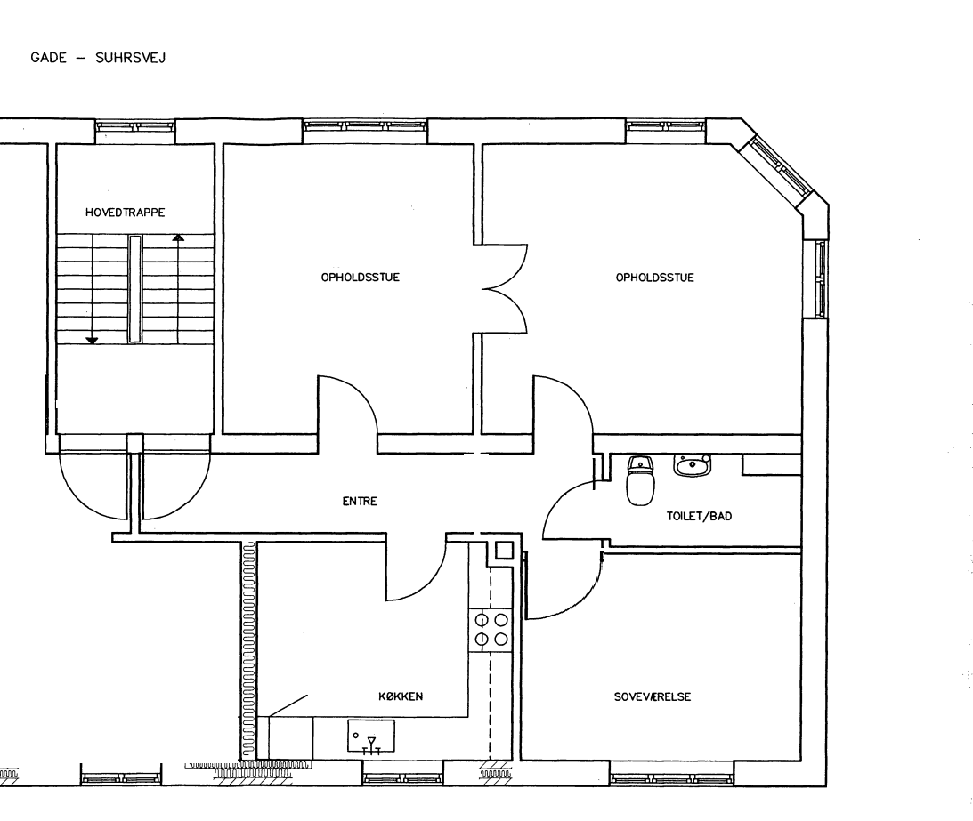
Lejligheden, der er beliggende på 3. sal, indeholder soveværelse og en rummelig stue opdelt i to stuer med åbning imellem, hvilket giver gode muligheder for indretning. Derudover er der køkken og badeværelse.
Boligen er nyistandsat med hvidmalede vægge og paneler samt smukke originale gulve, der giver lejligheden masser af charme.
Til lejligheden hører et separat kælderrum samt adgang til fælles vaskerum i kælderen. Der er mulighed for parkering bag ejendommen.
Derudover er der et hyggeligt fælles gårdmiljø, som kan benyttes af ejendommens beboere.
Bemærk: Husdyr er ikke tilladt.
Indretningsbillederne er visualiseringer genereret med AI og skal alene betragtes som inspirationsbilleder. De er derfor ikke målfast. Lejligheden fremstår tom ved fremvisning.
